Ramos Bilbao Arquitectos

MAÑARIKU HOUSE

Durango, España 2021

Mañariku House es una vivienda que parte de la rehabilitación de una villa diseñada originalmente por el reconocido arquitecto vasco Nikola de Madariaga.

El proyecto mantiene vivo el legado del autor al respetar una de sus decisiones más potentes: mostrar siempre la estructura como protagonista. En esta nueva etapa, esa idea se lleva aún más lejos, potenciando la presencia de los elementos constructivos hasta convertirlos en el lenguaje principal de la casa.

El enfoque se inspira en la filosofía wabi-sabi, que reconoce la belleza en lo esencial y en lo que perdura a lo largo del tiempo. Así, aunque la vivienda ha sido redistribuida y ampliada, la continuidad conceptual se mantiene. Lo nuevo no busca borrar lo anterior, sino reforzarlo: la estructura sigue siendo visible, ahora con mayor contundencia, y se combina con materiales honestos capaces de envejecer con dignidad.

El hormigón visto adquiere un papel fundamental en esta estrategia. No solo se utiliza para subrayar los muros y soportes originales, sino que define los nuevos espacios incorporados —gimnasio, sauna, piscina, garaje— con una coherencia material que refuerza la idea de atemporalidad. La piedra local conecta la casa con el lugar, mientras que la madera aporta la calidez necesaria para domesticar la solidez del conjunto.

La piscina sintetiza de manera clara este planteamiento. Suspendida sobre el terreno, su vuelo recuerda a la propia lógica estructural de la casa, visible en las costillas de hormigón que sostienen las partes más expuestas. No se trata de un gesto gratuito, sino de una respuesta casi inevitable al emplazamiento: una ladera orientada al sur con vistas abiertas al valle, que pedía prolongar la casa hacia el horizonte. La estructura, en este sentido, está en íntima armonía con el paisaje, tanto conceptual como materialmente.

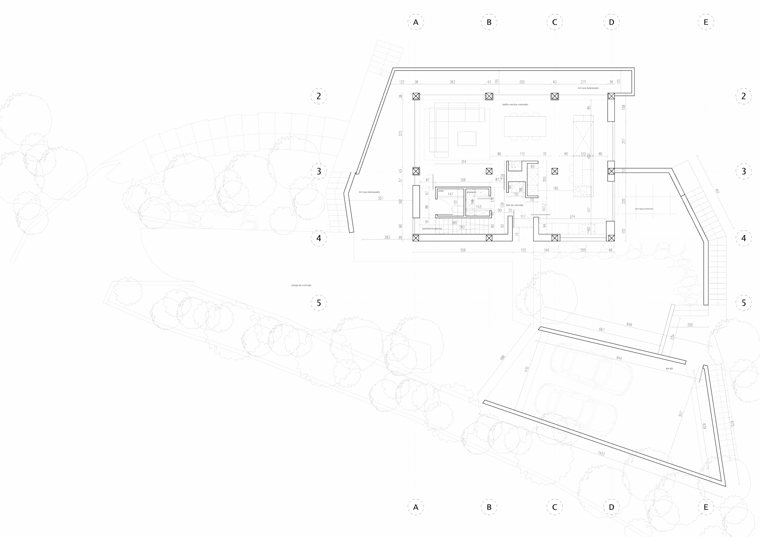
La organización espacial responde a este mismo equilibrio. Los servicios se concentran en la planta baja, la vida cotidiana se abre hacia el jardín en el nivel intermedio, y los espacios privados ocupan la planta superior, orientados hacia las mejores vistas. En todo momento, la materialidad y la estructura marcan la atmósfera de los espacios.

Más que una simple rehabilitación, Mañariku House es un ejercicio de continuidad conceptual. El respeto hacia las decisiones de Nicola Madariaga, sumado a un enfoque wabi-sabi que valora la permanencia de las ideas en el tiempo, da lugar a una vivienda contemporánea, sobria y sólida, que hace visible aquello que normalmente permanece oculto: la estructura como identidad.

Equipo
Ramos Bilbao arquitectos

Fotógrafo
Xabier Ramos

SUP. PARCELA / M2

2.510

SUP. CONSTRUIDA / M2

453

HABITACIONES

3

PLANTAS

3

DOWNLOAD

.

TIPOLOGÍA

RESIDENCIAL